Bản đồ quy hoạch thôn Kim Tiên, xã Xuân Nộn, huyện Đông Anh autocad, pdf Tải bản đồ quy hoạch tổ dân phố Kim Tiên, phường Xuân Nộn -> Kiểm tra quy hoạch phường Xuân Nộn
Author Archives: QuyhoachDongAnh
Bản đồ quy hoạch 1/500 phường Đông Hội ( Xã Đông Hội), Quận Đông Anh ( Huyện Đông Anh) GIỚI THIỆU PHƯỜNG ĐÔNG HỘI Phường Đông Hội (Xã Đông Hội) nằm ở phía nam Quận Đông Anh (huyện Đông Anh), có vị trí địa lý: Phía đông giáp phường Mai Lâm (xã Mai Lâm) Phía […]
Bản đồ quy hoạch 1/500 tổ dân phố Đường Yên ( thôn Đường Yên), phường Xuận Nộn ( Xã Xuân Nộn) Điều 1. Phê duyệt Quy hoạch chi tiết tỷ lệ 1/500 khu vực dân cư thôn Đường Yên, xã Xuân Nộn, huyện Đông Anh với những nội dung chính như sau: 1. Tên […]
Bản đồ quy hoạch tổ dân phố Đường Nhạn ( thôn Đường Nhạn), xã Xuân Nộn (phường Xuân Nộn). Kiểm tra chi tiết quy hoạch 1/500 Đông Anh Quyết định số 15499/QĐ-UBND ngày 09/12/2022 quy hoạch 1/500 thôn Đường Nhạn, xã Xuân Nộn, huyện Đông Anh Tải bản đồ quy hoạch autocad Đường Nhạn, Xuân […]
Bản đồ quy hoạch 1/500 tổ dân phố Đình Trung (thôn Đình Trung, phường Xuân Nộn ( xã Xuân Nộn) Bản đồ quy hoạch thôn Đình Trung – Xã Xuân Nộn autocad, bản đồ vệ tinh 1. Quy hoạch 1/500 Đình Trung, Xuân Nộn Tên đồ án: Quy hoạch chi tiết tỷ lệ 1/500 khu […]
Bản đồ quy hoạch phường Xuân Nộn ( Xã Xuân Nộn) Bản đồ quy hoạch 1/500 phường Xuân Nộn – Quận Đông Anh (quyhoachdonganh.com) GIỚI THIỆU CHUNG PHƯỜNG XUÂN NỘN Phường Xuân Nộn ( Xã Xuân Nộn) nằm phía Bắc quận Đông Anh Phía Đông giáp phường Thụy Lâm ( Xã Thụy Lâm) Phía Tây […]
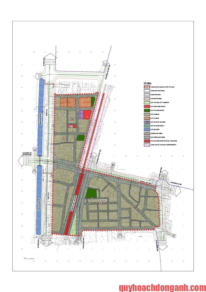
Bản đồ quy hoạch 1/500 ô quy hoạch V.3.4 phân khu N5 thị trấn Đông Anh. Ảnh: quyhoachdonganh.com Phối cảnh quy hoạch 1/500 ô quy hoạch V.3.4 phân khu N5 thị trấn Đông Anh, quận Đông Anh Quy hoạch 1/500 ô quy hoạch V.3.4 phân khu N5 duyệt căn cứ theo quyết định số 2117/QĐ-UBND […]
Bản đồ quy hoạch 1/500 ô V3.3 phân khu N5 thị trấn Đông Anh Bản đồ autocad quy hoạch 1/500 thị trấn Đông Anh ô V3.3 phân khu N5 1. Phạm vi ranh giới, quy mô lập quy hoạch Khu vực nghiên cứu nằm trong địa giới hành chính thị trấn Đông Anh và phường […]
Bản đồ quy hoạch 1/500 dân cư ô quy hoạch V3.2 phân khu N5 thị trấn Đông Anh autocad Kiểm tra quy hoạch Đông Anh từng thửa đất xem trực tiếp từ vệ tinh 1. Đối tượng áp dụng, phân công quản lý thực hiện: 2. Phạm vi ranh giới, quy mô lập quy hoạch: […]
Bản đồ quy hoạch xây dựng ô quy hoạch V2.7 phân khu N5 quy hoạch thị trấn Đông Anh Quy hoạch chi tiết tỷ lệ 1/500 khu vực dân cư thuộc ô quy hoạch V.2.7 phân khu đô thị V5, thị trấn Đông Anh, quận Đông Anh. Địa điểm: thị trấn Đông Anh và phường […]








